Table of contents
Section Overview
Space isn’t just an area you fill; it’s a resource that needs strategy.
In the UAE, where homes vary from compact urban apartments to large villas, and businesses operate in fast-paced commercial hubs, the need for Custom Space Planning in UAE has become more essential than ever.

Poorly planned layouts don’t just look bad — they waste time, reduce comfort, and limit productivity.
Our team at Homies Interior Fitouts & Renovations takes a future-focused approach to redesign how your space functions, flows, and impacts your daily life.
Whether you’re upgrading your home, scaling your business, or transforming a property for rental or resale, our custom space planning service ensures every square meter delivers value.
We combine real-world functionality with contemporary aesthetics, creating layouts that make sense today and stay flexible for tomorrow.


Why Custom Space Planning in UAE Matters More Than Ever
Living and working in the UAE often means adapting to various property types — high-rise apartments, townhouses, villas, shared offices, retail outlets, and warehouses.
Each comes with its own challenges: awkward corners, wasted zones, oversized rooms, tight hallways, poor furniture placement, or impractical traffic flow.
This is exactly where Custom Space Planning in UAE becomes a game changer. A well-planned layout goes beyond appearance. It affects:
- How you move within your space
- How productive your employees are
- How clients perceive your business
- How comfortable your family feels
- How efficiently you can store essentials
- How your space evolves with future needs
People often try DIY rearrangements, but without design logic, the results rarely solve deeper layout issues.
It’s not guesswork — it’s a calculated design strategy tailored to your lifestyle or business model.
Effective space planning requires understanding human movement, ergonomic standards, electrical placements, lighting flow, architecture, and safety.
Our Custom Space Planning in UAE — What You Get
We provide a complete, structured, and highly personalized space planning service designed for both residential and commercial clients. Here’s what you can expect:
1. Residential Space Planning
We specialize in planning for studios, apartments, villas, and townhouses across Dubai, Sharjah, Ajman and Umm Al Quwain.
Whether your space feels cluttered or too empty, we create practical layouts that improve comfort, privacy, and utility.
From living room zoning to bedroom optimization, kitchen workflow design, and storage planning, our goal is to make your home feel spacious and harmonious without unnecessary renovations.
2. Commercial & Office Space Planning
Businesses rely on efficiency, and your layout plays a major role. We map out circulation paths, employee work zones, meeting areas, storage units, break rooms, and visitor flow.
Every element is planned to increase productivity and reflect your brand’s identity.
With Custom Space Planning in UAE, companies operating in competitive markets—like Dubai—can significantly improve team performance and customer experience.
3. Retail & Showroom Space Planning
Retail success depends on how customers move through your store. If your layout doesn’t lead them toward products, you lose sales.
We create shopper-friendly circulation routes, visual merchandising zones, display strategies, and checkout area placement that maximizes sales and enhances the buying journey.
4. Smart Storage & Space Optimization
Storage problems are the biggest killers of good design. We analyze available space to introduce intelligent built-in solutions, hidden storage, multi-functional furniture, and vertical utilization methods.
This makes your space cleaner, quicker to navigate, and easier to maintain.
5. Furniture Layout Planning
Wrong furniture size or placement can ruin the functionality of an entire room.
We plan furniture layouts based on proportion, flow, balance, and usage requirements. You’ll see exact placement before anything is moved or purchased.
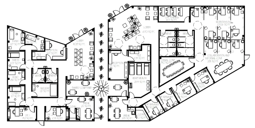
6. 2D & 3D Space Visualization
With every project, you receive professional visuals so you understand the final outcome clearly. These guides help avoid mistakes and allow you to see the full transformation before execution.
7. End-to-End Fit-Out Execution
Our strength lies in not only planning but also executing the entire project. From layout planning to furnishing, lighting, joinery, partitioning, flooring, paint, and final setup — everything is handled by our in-house specialists.
How We Approach Custom Space Planning in UAE?
We follow a clear, structured and client-focused approach:
Step 1: Understanding Your Needs
We start with a discussion about your lifestyle, business operations, aesthetic preferences, challenges, and goals. This helps us plan around real needs, not assumptions.
Step 2: Site Inspection & Measurements
We conduct accurate measurements, movement-flow assessments, and analyze existing constraints, electrical points, windows, and lighting.
Step 3: Zoning & Functional Mapping
We divide the space into zones based on purpose — relaxation, work, storage, dining, sales, customer movement, etc. This ensures every area has a clear identity and function.
Step 4: Layout Planning (2D/3D)
We create multiple layout options to compare functionality, furniture placement, and circulation flow. You will know exactly how your space will look and feel.
Step 5: Material & Furniture Suggestions
We recommend furniture sizes, styles, lighting adjustments, décor ideas, and materials to enhance harmony and maximize usability.
Step 6: Fit-Out or Rearrangement Execution
Depending on your needs, we either execute a full makeover or simply rearrange and upgrade your existing space.
Step 7: Final Optimization
We perform last-mile touches—fine adjustments, lighting angles, décor alignment, and space calibration.
Why Choose Us for Custom Space Planning in UAE?
Designs That Truly Work
We focus on layouts that make daily living or business operations easier, not just good-looking ideas. Every plan is built around real movement, real habits, and real functionality.
Local Experience That Shows
We understand the common challenges in UAE properties, from compact apartments to large villas and commercial units. This helps us create layouts that feel natural and fit the region’s lifestyle.
Complete Planning & Execution
You don’t need multiple contractors. We handle planning, fit-out, furnishing, lighting, joinery, and finishing under one roof for a smooth, reliable process.
Fast Turnaround, Zero Compromise
Most layout plans are delivered in 24–48 hours without sacrificing detail. Our workflow is sharp, structured, and built for clients who need results quickly.
Future-Ready Layout Solutions
We plan your space with tomorrow in mind. Whether your family grows or your business expands, our layouts stay flexible and easy to evolve.
Smart Optimization for Any Space Size
From small rooms to large commercial floors, we maximize every meter. Our approach ensures open, accessible, and clutter-free layouts regardless of property size.
Clear Visuals Before Execution
We provide 2D and 3D visuals so you understand the layout clearly before work begins. This eliminates guesswork and prevents costly corrections later.
Honest Advice & Transparent Pricing
We don’t push unnecessary work. You get straightforward guidance, realistic solutions, and clear pricing with no hidden surprises.
24/7 Support When You Need Us
We operate round the clock to match the UAE’s fast-paced lifestyle. Whether it’s planning, execution, or adjustments, we’re always available.
Ready to Transform Your Space?
Your space has potential — Let’s design a functional, modern, and efficient layout tailored to your lifestyle or business needs.
WhatsApp us anytime: +971 050 167 5286.
FAQs
What is custom space planning?
It’s a strategic layout design process that optimizes the way your space is used — improving functionality, comfort, and aesthetics.
Do you provide planning for both residential and commercial spaces?
Yes, we design layouts for homes, offices, showrooms, retail stores, cafes, warehouses, and more.
Can you help with small or awkward spaces?
Absolutely. Small or odd-shaped spaces benefit the most from expert planning.
Do you provide layout drawings before starting work?
Yes, we share 2D/3D layout visuals so you clearly see the final concept.
How quickly can you deliver a space planning design?
In most cases, 24–48 hours depending on project size.